
LETOU国际米兰官网官方微信

LETOU国际米兰官网官方微博
招生电话:0523-86664242、80769090
联系电话:0523-80769096
传真:0523-86669508
邮编:225300
邮箱:tzxy@tzu.edu.cn
地址:江苏省泰州市济川东路93号
米兰官网校园宣传栏建设采用询价方式进行公开采购,欢迎符合资质的供应商参加本次采购活动。具体内容如下:
一、项目概况
1.项目名称:LETOU国际米兰官网校园宣传栏建设
2.采购编号:TZXYJZCG2019004
3.采购预算:19.8万元整
二、供应商资质
合格的投标人须符合《中华人民共和国政府采购法》第二十二条相关规定和以下要求:
1.中华人民共和国境内注册的具有独立承担民事责任能力的企业法人、个体工商户;
2.工商营业执照中包含相关经营范围;
3.未被“信用中国”网站(www.creditchina.gov.cn)列入失信被执行人、重大税收违法案件当事人名单、政府采购严重失信行为记录名单;
4.本项目不接受联合体参加询价,供应商必须具备独立供货的能力,成交后不允许分包或转包;
5.本次询价必须由法定代表人或其委托代理人(具有法定代表人签署的授权书)参加。
三、采购需求
(一)第一项
1.详细参数表
品名 | 规格/材质 | 单位 | 数量 |
校园宣传栏 | 尺寸:8400*2700*200mm;(1组3块) 箱体材质:1.5mm镀锌钢板折弯焊接; 立柱材质:150*150*1.5mm镀锌方管折弯焊接; 视窗材质:6.0mm钢化玻璃单面视窗; 开启方式:30KG-700N气压支杆单面开启; 铰链合页:80mm厚度3.0mm镀锌灯箱铰链; 门框加强:1.5mm镀锌板折弯焊接; 地脚材质:300*300*10mm钢板冲孔; 立柱插件:3.0mm钢板激光切割; 顶棚外框:50*50*2.0mm镀锌方管; 顶棚封板:1.5mm镀锌板双面封板; 顶棚主梁:50*100*2.0mm镀锌方管; 顶棚辅梁:30*50*1.5mm镀锌方管焊接; 横栏花格:1.5mm镀锌板激光切割折弯; 底部花纹:1.5mm钢板激光切割穿丝; 表面处理:高温静电喷塑(颜色搭配与学校主楼色调一致)。 | 组 | 10 |
2.产品效果图

3.产品尺寸图

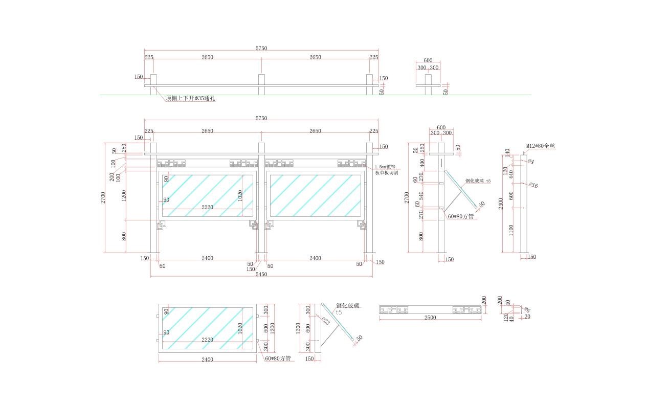
(二)第二项
1. 详细参数表
品名 | 规格/材质 | 单位 | 数量 |
校园宣传栏 | 尺寸:5750*2700*200mm;(1组2块); 箱体材质:1.5mm镀锌钢板折弯焊接; 立柱材质:150*150*1.5mm镀锌方管折弯焊接; 视窗材质:6.0mm钢化玻璃单面视窗; 开启方式:30KG-700N气压支杆单面开启; 铰链合页:80mm厚度3.0mm镀锌灯箱铰链; 门框加强:1.5mm镀锌板折弯焊接; 地脚材质:300*300*10mm钢板冲孔; 立柱插件:3.0mm钢板激光切割; 顶棚外框:50*50*2.0mm镀锌方管; 顶棚封板:1.5mm镀锌板双面封板; 顶棚主梁:50*100*2.0mm镀锌方管; 顶棚辅梁:30*50*1.5mm镀锌方管焊接; 横栏花格:1.5mm镀锌板激光切割折弯; 底部花纹:1.5mm钢板激光切割穿丝; 表面处理:高温静电喷塑(颜色搭配与学校主楼色调一致)。 | 组 | 5 |
2.产品效果图:

3.产品尺寸图:

四、报价表
货物清单及报价表
供应商单位公章:
品名 | 规格/材质 | 单位 | 数量 | 单价 | 总价 |
总报价(大写): 元(小写:¥ ) | |||||
法定代表人或其授权代表签字:
注:1.所有价格用人民币表示(含税价);
2.报价应包括但不限于材料、配件、运费、税费、调试、检测等费用,及其它涉及合同签订、合同履行、技术服务等必不可少的材料和费用,采购人不再支付报价之外的任何费用;
3.所有报价应是唯一的,询价小组不接受任何有选择的报价。如果单价与数量的乘积之和与总价不一致时,以单价为准进行修正;只有在询价小组认为单价有明显的小数点错误时,才能以标出的总价为准,并修改单价。大写与小写不一致时,以大写为准进行修正。供应商拒绝修正的,其响应文件应作无效响应文件处理。
五、询价保证金
1.保证金金额:人民币叁仟捌佰元整
2.保证金收款单位:
开户行:泰州农行海陵支行
开户名:泰州市财政局
账号:201101040058888
3.保证金递交方式:银行汇票(必须从投标人法人基本账户汇出,不接受银行承兑汇票和商业承兑汇票);未按此方式递交保证金的,采购人有权拒绝其参加投标。未成交投标人的保证金在投标活动结束后当场退还,成交投标人的保证金在合同签定后自动转为履约保证金(履约保证金于供货后退还,不计利息)。
4.询价保证金不予退还的情形:
(1)供应商在询价有效期内撤回或修改其响应文件的;
(2)供应商提供的有关资料、资格证明文件被确认是不真实的;
(3)成交供应商在规定期限内因自身原因未能按本公告要求与采购人签订合同的;
(4)供应商在本次询价过程中,有违法违规行为被查实的。
成交供应商有上述情形之一行为的,成交无效,其询价保证金将不予退还。若成交供应商在执行合同中有任何不履约行为,视情节,采购人可从其履约保证金中取得补偿,不足部分,将依法追究其相应的法律责任。
六、评定成交的标准
询价小组从通过资格审查的供应商中按质量和服务均能满足采购文件实质性要求,且报价最低的原则确定成交供应商;如出现两个或两个以上实质性响应采购文件要求且报价均为最低的供应商,则按签到顺序进行抽签确定成交供应商。
七、付款方式
成交供应商应在合同签订后30日内将所有货物安装到位,经验收合格后付合同款的90%,余款于3年后无质量或服务问题时无息付清。
八、报名确认函
报名确认函
LETOU国际米兰官网:
我公司已知LETOU国际米兰官网校园宣传栏建设采购项目公告文件相关要求,并完全清晰理解全部内容,不存在任何误解之处,同意放弃提出质疑的权利。经我公司认真研究,决定无保留地接受公告所有条款,准时参加本项目投标活动。
我公司本项目联系人:
手机号码:
供应商单位(盖章)
年 月 日
备注:供应商应在2019年1月16日17:00前将《报名确认函》递交至LETOU国际米兰官网后勤管理处(济川东路93号LETOU国际米兰官网行政办公楼D1130室)或将《报名确认函》制作成PDF文件发送至报名邮箱(jzcg@tzu.edu.cn),未在规定时间内按规定要求报名的供应商,采购人有权拒绝其参加询价活动。不符合资格要求随意报名或报名后无故不参加询价活动的,作为有不良行为的供应商记录在采购人处。
九、响应文件至少应包含以下材料
1.供应商《企业法人营业执照》(复印件加盖投标人公章,原件备查);
2.供应商法定代表人证明文件(附法定代表人身份证复印件),法定代表人授权委托书原件(仅当非法定代表人询价时提供,附授权代表身份证复印件);
3.货物清单及报价表(加盖供应商单位公章,并经法定代表人或其授权代表签字);
4.参加政府采购活动前3年内在经营活动中没有重大违法记录的书面声明(原件);
5.本项目的联系人、联系方式;
6.服务承诺。
响应文件应按上述顺序装订成册,并由供应商的法定代表人或其授权代表签名并加盖单位公章。本次响应文件有效期为30天。
以上响应文件一式叁份(壹正贰副,在文件封面上标注)。供应商应将响应文件正本和所有副本密封后,在外封袋上加盖供应商单位公章。响应文件应在2019年1月17日15:00之前密封报送到泰州市济川东路93号LETOU国际米兰官网行政办公楼D1115室。
十、时间及地点
1.公告文件质疑时间:发布之日起2日内
2.响应文件接受开始时间:2019年1月17日14:45
响应文件接受截止时间:2019年1月17日15:00
3.询价时间: 2019年1月17日15:00
询价地点:泰州市济川东路93号行政办公楼D1115室
十一、联系方式:
联系人:陈老师
联系电话:0523-80769112
LETOU国际米兰官网
2019年1月14日

LETOU国际米兰官网官方微信

LETOU国际米兰官网官方微博
招生电话:0523-86664242、80769090
联系电话:0523-80769096
传真:0523-86669508
邮编:225300
邮箱:tzxy@tzu.edu.cn
地址:江苏省泰州市济川东路93号