
LETOU国际米兰官网官方微信

LETOU国际米兰官网官方微博
招生电话:0523-86664242、80769090
联系电话:0523-80769096
传真:0523-86669508
邮编:225300
邮箱:tzxy@tzu.edu.cn
地址:江苏省泰州市济川东路93号
米兰官网拟将图书馆地下书库除湿建设项目采用询价方式进行公开采购,欢迎符合资质的供应商前来参加本次询价采购活动。具体内容如下:
一、项目概况
1.项目名称:LETOU国际米兰官网图书馆地下书库除湿建设项目
2.采购编号:TZXYZBCG20180528
3.采购预算:9.92万元整
4.实施时间:合同签订后30个工作日完成
二、供应商资质
合格的供应商须符合《中华人民共和国政府采购法》第二十二条、《中华人民共和国政府采购法实施条例》第十七条的相关规定并具备以下要求:
1. 中华人民共和国境内注册的具有独立承担民事责任能力的企业法人、个体工商户;
2. 工商营业执照中包含相关经营范围;
3. 本项目不接受联合体参加询价,供应商必须具备独立供货的能力,成交后不允许分包或转包;
4. 供应商应具有履行合同所必需的安全生产许可、资质、设备和专业技术能力;
5. 凡为本采购项目提供整体设计、规范编制或者项目管理、监理、检测等服务的供应商,不得再参加本采购项目的其他采购活动。
6. 本次询价必须由法定代表人或其委托代理人(具有法定代表人签署的授权书)参加。
三、采购需求
序号 | 设备名称 | 规格 | 参数 | 数量 | 推荐品牌 |
1
| 工业除湿机 | 4000--4500W
| 1.双离心风轮空气循环系统 2.湿度调节范围:10%到90%可调 3.湿度调节精度:± 3% 4.化霜模式:低温自动化霜 5.排水方式:软管直接排水 6.电源控制系统配备高效突波吸收装置及保护盒,构成双重保护 7.噪音:<60db±5% 8. 除湿量(不小于): 10KG/H(4000--4500W) 6.8KG/H(2500--2800W) 9.机身参考尺寸(不大于): W680*D460*H1760mm(4000--4500W) W600*D410*H1600mm(2500--2800W) 10. 参考适用面积: 350-400㎡(4000--4500W) 200-300㎡(2500--2800W) | 2 | 多乐信(DOROSIN)DP-10S、百奥(PARKOO)CF15KT、森井CH1800RB第三代 |
2500--2800W | 3 | ||||
2 | 污水提升泵 | 400--500W | 垂直扬程不小于5米 水平扬程不小于50米 100L/分钟 可重复启动100万次 | 2 | 泽德E2、 格兰富(Grundfos)C-3、威乐(Wilo)Hisewlift3-35 |
3 | 电路改造 | 适合两台4000--4500W、三台2500--2800W工业除湿机和两台400W--500W污水提升泵使用 |
10²五芯电缆210米 插座11套 阻燃槽板150米 动力箱5套 辅助材料 | 电缆:远东、正泰、宝胜
开关插座:西门子、施耐德、福田
| |
4 | 管道铺设 | 32PPR管180米 50Pvc管防冻180米 辅助材料 | PPR、PVC管:日丰、公元 、中财 |
说明:
1. 采购需求参考推荐品牌产品为满足采购人实际需求的产品,各响应供应商可以采用其他符合或高于需求参数的产品进行响应,并逐项向询价小组陈述所投品牌型号的理由,由询价小组评定;
2. 电路改造和管道铺设部分,各响应单位可根据现场踏勘自行报价,一经中标,该部分不得以任何理由要求调增。
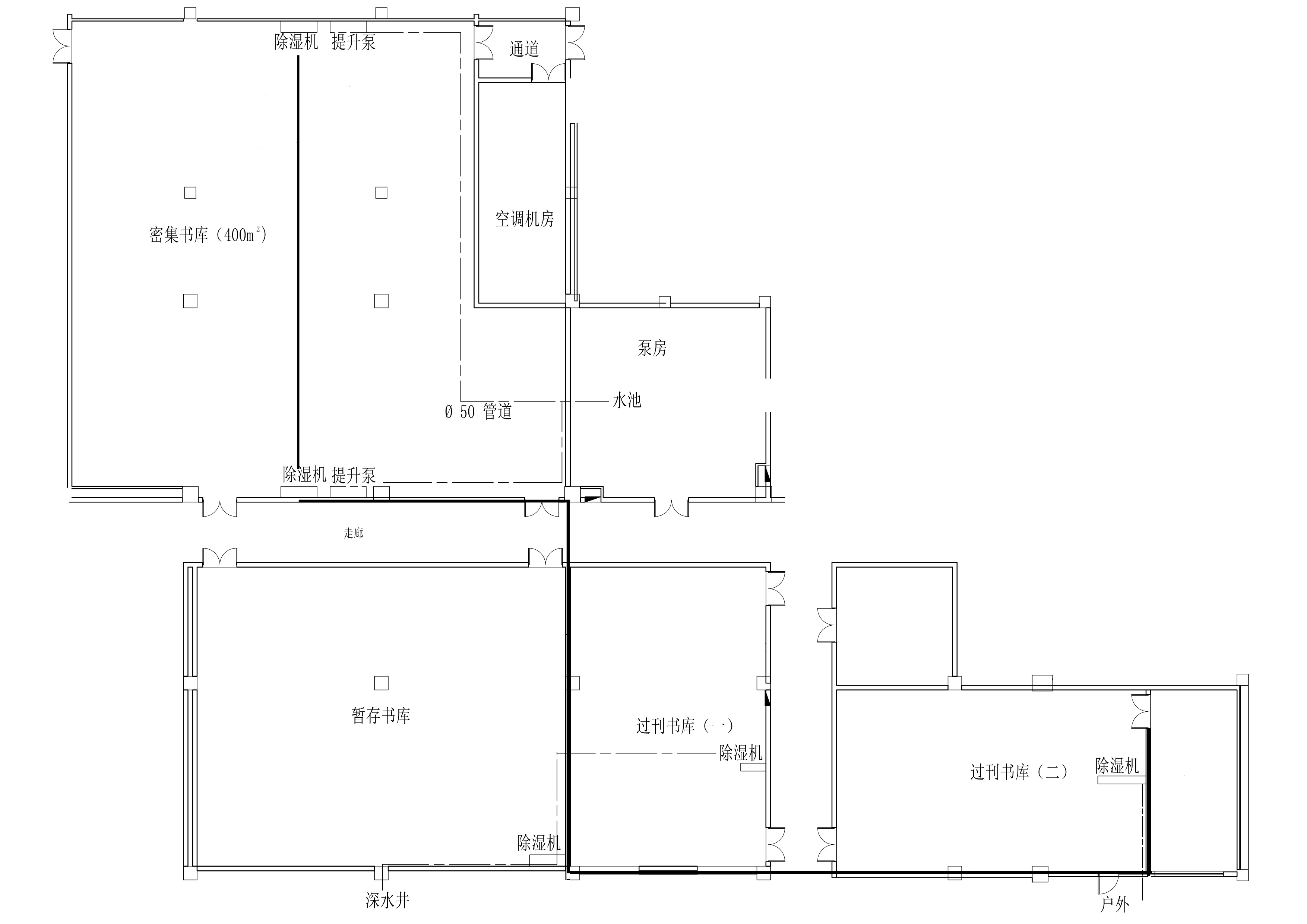
3. 改造密集书库和南侧书库的插座电路,以适用于大功率工业除湿机的使用。将5台大功率工业除湿机放于暂存书库和密集书库的两侧,铺设排水管道将除湿后的冷凝水由管道排到污水提升泵,经提升泵将水提升到上方的管道排到集水池,从而起到书库连续排水的作用。
具体如图:

图示: 排水管 ---- 电 缆 ——
质量保证及售后服务要求:
1. 供应商所提供的货物应是全新的和未使用过的,并符合国家有关制造标准和环保要求。买方必须能享受制造厂商关于本设备的通用质保和售后服务(有特殊要求的以特殊要求为准)。供应商根据合同提供的货物和服务实行3年以上(有特殊要求的除外)免费保修,并负责终身维修。保修期内卖方应免费维修,保修期外的维修收费按国家的相关规定办理。
2. 供应商提供齐全的合格证、质保卡、说明书。
3. 服务响应时间:24小时内响应,修复时间为3个工作日,如不能在3个工作日修复则应提供备用设备。
四、踏勘现场
各投标单位须踏勘现场,将《踏勘现场确认单》打印盖章后到现场踏勘并经业主代表签字后装订在响应文件中,否则不予认可。(现场踏勘联系人:孙老师联系电话:15161019009)
踏勘现场确认单
LETOU国际米兰官网:
根据LETOU国际米兰官网图书馆地下书库除湿建设项目询价采购公告文件要求,我单位已对本项目进行了现场踏勘,对本项目的采购需求和现场情况均已知晓。
业主现场代表(签字):
踏勘单位(盖章):
现场踏勘人:
2018年 月 日
五、报价表
货物清单及报价表
供应商单位公章:
序号 | 设备或 服务名称 | 品牌 | 规格 | 数量 | 单价(元) | 备注 |
1 | ||||||
2 | ||||||
3 | ||||||
4 | ||||||
总价(大写):元(小写:¥ ) | ||||||
法定代表人或其授权代表签字:
注:1.所有价格用人民币表示(含税价)。
2.报价应包括但不限于材料、配件、运费、税费、更换、调试、检测等费用,及其它涉及合同签订、合同履行、技术服务等必不可少的材料和费用。采购人不再支付报价之外的任何费用。
3.所有报价应是唯一的,询价小组不接受任何有选择的报价。大写与小写不一致时,以大写为准进行修正。供应商拒绝修正的,其响应文件应作无效响应文件处理。
六、货物规格及技术参数要求响应情况
货物规格及技术参数要求响应表
供应商单位公章:
序号 | 货物规格和技术参数要求 | 是否响应 | 备注 |
1 | |||
2 | |||
3 | |||
4 |
法定代表人或其授权代表签字:
注:如响应相应的货物规格及技术要求在“是否响应”栏填“√”
七、询价保证金
1.保证金金额:人民币壹仟捌佰元整
2.保证金收款单位:
开户行:泰州农行海陵支行
开户名:泰州市财政局
账号:201101040058888
3.保证金递交方式:银行汇票(必须从法人基本账户汇出,不接受银行承兑汇票和商业承兑汇票);未成交供应商的保证金在询价活动结束后当场退还,成交供应商的保证金在合同签定后自动转为履约保证金(履约保证金于项目验收合格后退还,不计利息)。
4.询价保证金不予退还的情形:
⑴供应商在询价有效期内撤回或修改其响应文件的;
⑵供应商提供的有关资料、资格证明文件被确认是不真实的;
⑶成交供应商在规定期限内因自身原因未能按本公告要求与采购人签订合同的;
⑷供应商在本次询价过程中,有违法违规行为被查实的。
成交供应商有上述情形之一行为的,成交无效,其询价保证金将不予退还。若成交供应商在执行合同中有任何不履约行为,视情节,采购人可从其履约保证金中取得补偿,不足部分,将依法追究其相应的法律责任。
八、评定成交的标准
询价小组从通过资格审查的供应商中按质量和服务均能满足采购文件实质性要求,且报价最低的原则确定成交供应商;如出现两个或两个以上实质性响应采购文件要求且报价均为最低的供应商,则按签到顺序进行抽签确定成交供应商。
九、付款方式
安装完成经验收合格后付合同款的90%,余款于一年后无质量或服务问题时付清。
十、报名确认函
报名确认函
LETOU国际米兰官网:
我公司已知图书馆地下书库除湿建设项目询价采购项目公告文件相关要求,经我公司研究决定准时参加本项目询价活动。
我公司本项目联系人:手机号码:
供应商单位(盖章)
年月 日
备注:供应商应在2018年5月30日17:00前将《报名确认函》递交至LETOU国际米兰官网后勤管理处(济川东路93号LETOU国际米兰官网行政办公楼D1126室)或将《报名确认函》制作成PDF文件发送至报名邮箱(tzxyzbcg@163.com),未在规定时间内按规定要求报名的供应商,采购人有权拒绝其参加询价活动。不符合资格要求随意报名或报名后无故不参加询价活动的,作为有不良行为的供应商记录在采购人处。
十一、响应文件至少应包含以下材料
1.供应商《企业法人营业执照》(复印件加盖供应商公章,原件备查);
2.供应商法定代表人证明文件(附法定代表人身份证复印件),法定代表人授权委托书原件(仅当非法定代表人询价时提供,附授权代表身份证复印件);
3.供应商资质证明材料和证书(承诺为原件材料;证明、证书为复印件加盖供应商单位公章,原件备查);
4. 《踏勘现场确认单》;
5. 货物清单及报价表(加盖供应商单位公章,并经法定代表人或其授权代表签字);
6. 货物规格及技术参数要求响应表(加盖供应商单位公章,并经法定代表人或其授权代表签字);
7. 本项目的联系人、联系方式;
8. 服务承诺。
响应文件应按上述顺序装订成册,并由供应商的法定代表人或其授权代表签名并加盖单位公章。本次响应文件有效期为30天。
以上响应文件一式叁份(壹正贰副,在文件封面上标注)。供应商应将响应文件正本和所有副本密封后,在外封袋上加盖供应商单位公章。响应文件应在2018年6月1日10:00之前密封报送到泰州市济川东路93号LETOU国际米兰官网行政办公楼D1107室。
十二、时间及地点
1.公告文件质疑时间:发布之日起3日内
2.响应文件接受开始时间:2018年6月1日9:45
响应文件接受截止时间:2018年6月1日10:00
询价时间: 2018年6月1日10:00
3.询价地点:泰州市济川东路93号LETOU国际米兰官网行政办公楼D1107室。
十三、联系方式:
联系人:陈老师
联系电话:0523-80769112
LETOU国际米兰官网
2018年5月28日

LETOU国际米兰官网官方微信

LETOU国际米兰官网官方微博
招生电话:0523-86664242、80769090
联系电话:0523-80769096
传真:0523-86669508
邮编:225300
邮箱:tzxy@tzu.edu.cn
地址:江苏省泰州市济川东路93号